TRM85 a écrit : ↑09 nov. 2015, 18:53
Bon, c'est nickel, tout est dit !!!
Bonjour,
Non tout est loin d'être dit...
Je me casse la tête à tenter de faire fonctionner la boîte d'accord automatique d'antenne BX-33-A avec un TR-VP-213 et visiblement il n'y a pas d'accord automatique.
L'antenne est correctement et naturellement accordée en milieu de bande sur 50Mhz ce qui est à peu près normal vu la longueur de l'antenne avec les trois brins. Le ROS est de 1 vers 51Mhz. Et le ROS grimpe "
sky high" vers les deux limites de bande
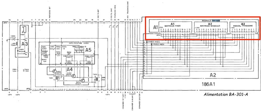
La boite d'accord automatique fonctionne grâce à trois circuits :
Un circuit de détection de phase et de modulo
Un réseau de correction de réactance d'antenne
Un circuit de verrouillage d'accord d'antenne

- BA-301-A.jpg (95.67 Kio) Vu 1816 fois
J'ai testé deux BX-33-A différentes sans succès sur ma jeep avant de me résoudre à ouvrir le boitier d'alimentation BJ-231-A
Le verrouillage du réglage se fait en fonction de la fréquence affichée sur le TR-VP par activation ou non activation de deux relais dans le boitier BX-33-A qui changent la valeur de saturation des inductances d'accord d'antenne.
Avec la boite d 'alimentation BJ-231-A, il n'y a aucun des signaux d'activation des relais qui passent vers la BX-33-A.(contacts D et F du câble)
J'ai donc ouvert le boitier BJ-231-A et je ne puis que constater qu'il n'y a pas de circuits pour le réglage automatique de la boite d'accord d'antenne.

- BJ-231-A_internal-view.jpg (196.44 Kio) Vu 1816 fois
Quelqu'un aurait-il plus d’information sur le boitier d'alimentation BJ-231-A?
Autre question : A quoi sert le commutateur VP113 <-> VP213. Il n'y a que trois fils raccordés à cet inverseur à multiples contacts.

- IMG_3562s.jpg (119.82 Kio) Vu 1812 fois
Selon moi, seul un émetteur-récepteur ER-95-x avec un le boitier d'alimentation BA-301-A peut faire fonctionner
une boite d'accord automatique BX-33-A.
Un membre du forum a, il y a quelques années, publié une nomenclature contenant le boitier BJ-231-A mais qui ne comprend pas de câble de commande pour la boite d'accord automatique d'antenne.

- TR-VP-113_BJ-231-A.jpg (152.62 Kio) Vu 1816 fois
Hors ce même membre a aussi publié cette photo d'une installation, qui montre ne pointillés le câble de télécommande de la boite d'accord.

- Installation_TR-VP-113.jpg (130.08 Kio) Vu 1816 fois
Est-ce que sont les éléments BC-344-A et/ou FI-90 A qui ajoutent la fonctionnalité de réglage automatique de l'accord d'antenne?
Plus d'infos sur les fonctionnalités de la boite BJ-231-A seraient les bienvenues.
D'avance merci.
Yves